Last revised: Tuesday, February 3, 2026 at 06:12 PM
This module is specifically designed to provide rapid analysis and design of simple beams. For complex, multi-span beams please use the other beam modules for wood, steel and concrete beams.
This module has a row of buttons above the beam graphical representation that allows you to add and select up to 12 beams to design. This can be seen in the screen capture below:

Looking at the screen capture above you can see:
| (1) | The highlighted beam button indicates the currently selected beam for which data is displayed. |
| (2) | The button labeled [Beam 2] represents the second beam that was defined. Clicking on that button will save all of the data for [Beam 1] and display all the data for [Beam 2]. |
| (3) | [Add] is used to add another beam to this calculation. When two beams have already been defined, clicking [Add] will add a button labeled [Beam 3]. |
| (4) | [Delete Bm X] is used to delete the noted beam. It will delete the beam that is currently selected. |
Directly below the band of beam selection buttons is the graphic that shows the basic layout of the currently selected beam. See below for a more detailed description.
Note: In this module, the beam span length is always specified on the beam layout graphic.
Beam Layout Graphic
This area shows a graphic representation of the selected beam. There are several variations of beams that you can specify using the [Add Cant] buttons and also by clicking on the end support graphics.
Here is a basic simple span beam:

Clicking on the right [Add Cant] button in the image above adds a single cantilever at the right support as shown below:

Clicking on the left support icon in the image above displays a selection box so you can select a fixed end. Doing this sets the left support to fixed as shown below:

Clicking on the left [Add Cant] button in the image above adds a single cantilever at the left support, resulting in the double cantilever as shown below:

Note that adding the cantilever on the left also had the effect of automatically revising the left support back to a pinned condition.
General Tab
This tab is where you select the beam material, allowable stresses, beam size, and set the beam bracing layout.
For steel and wood you can select ASD or LRFD design methods. For concrete, only strength design is available.

Steel Specific Tab Items
Design Values: This area enables you to enter the yield strength and elastic modulus of the steel. The paper-with-hand icon gives you access to the available AISC steel stress grades.

Quick-List Tab: This tab provides quick access to the built-in 13th Edition AISC steel section list. Clicking a section name like [W] or [HP] in the Select AISC Type category will display all the steel sections of that type in the list to the right.

Properties Tab: This tab provides a [View Section Properties] button that when clicked displays all of the design values for the AISC section you have selected.

Bracing Tab: This tab allows you to select how your beam is braced against lateral-torsional buckling. Defined brace points are automatically assumed to brace both the top and the bottom flanges.

The first line offers the most basic options.....fully unbraced or fully braced.
The next line offers uniform brace spacing options.
The last two buttons offer the ability to specify brace spacings from a starting point or enable you to specify selected brace points, as shown below:


Wood Specific Tab Items
Design Values: This area enables you to specify the design values for the wood species & grade you want to use. Click the
button to access the built-in NDS allowable stresses database.

Quick-List Tab: This tab provides quick access to the database of wood sections. Clicking a section type button like [Sawn-General] or [TJ:Microllam] in the Select Type category will display all the sections of that type in the list to the right.

Properties Tab: This tab provides the values for the wood section you have chosen. You can enter different numbers here to modify the section.

Bracing Tab: See information provided above in the Steel section for a summary of bracing options.
Concrete Specific Tab Items
Design Values: This area enables you to enter concrete and reinforcing strengths for the beam. In addition you can specify the stirrup size and Phi values.
NOTE: Support for concrete beams has been removed from the Multiple Simple Beam module when using IBC 2021 or later. To view any existing concrete calcs in Multiple Simple Beam, temporarily revise the governing code to an edition prior to IBC 2021. Also consider transcribing such calculation to the Concrete Beam module.

Span Data
When a concrete beam is chosen, a new tab named Span Data will be added to the user interface (see below). This tab is where you specify the beam cross section and reinforcing. This tab will only be shown when the material is set to concrete.

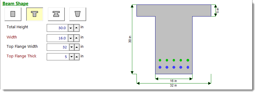
Beam Shape: You can select between 4 beam shapes:




On the right side of the tab you can specify up to 6 bars set (quantity, size, vertical location and start/stop endpoints).
Each bar set is referenced on the sketch with a color shown as a dot to the left of the set description.
The column highlighted in light blue titled "Dist of bar center....from...." is how you set the vertical position of the bars set in the beam.
When you look at the top one you can read it as "The top bar set is 3 inches from the bottom of the beam". Note that the module will know whether the bars are in tension or compression and handle the calculations properly.
The item named Bar Position This Span defines the starting and ending location of the bar's ends with respect to this span's left support. Using these starting and ending locations you can fine tune the bar layout and end cutoffs.
The data in the screen capture below shows that bar set #1 runs from the left end (0.0 ft) to 20.0 ft from the left support.

Results Tabs




And for concrete beams these two additional sub-tabs are also visible:



2D

Diagram

3D Rendering
