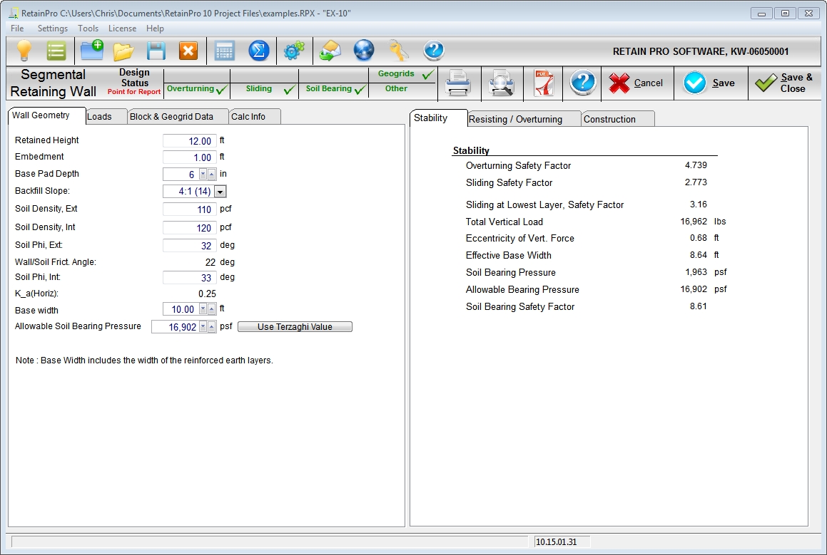
Wall Geometry Tab

| Retained Height: | Enter the retained height, which is assumed to be the total wall height above the setting base. It should be an even multiple of the height of the selected block. |
| Embedment: | Depth below grade (on the low side) to top of setting pad. Usually one block course or 1’-0”. |
| Base Pad Depth: | Thickness of the base pad. |
| Backfill Slope: | Select the backfill slope from the drop-down list box. |
| Soil Density, Exterior (in-situ): | Enter the density of the native soil beyond the backfill zone and under the base. |
| Soil Density, Interior (backfill): | Enter the density of the backfill material (typically granular soil or gravel). |
| Soil Phi, exterior (friction angle, Φie): | Enter the angle of internal friction of in-situ soil. |
| Wall/Soil Friction Angle, δ: | The friction angle at the soil/wall interface is calculated by the program as 2/3 Φe and reported here. |
| Soil Phi, interior (friction angle, Φi): | Enter the angle of internal friction of the backfill soil. |
| Ka (Horiz): | Coulomb's coefficient of lateral active earth pressure. |
Base width, ft (only applies to segmental walls with geogrids): Enter the full base width including wall depth. (usually 60% - 70% of retained height).

| Allowable Soil Bearing Pressure: | Enter the allowable soil bearing pressure or click the button labeled "Use Terzaghi Value" |